04 50 34 79 48
06 33 33 44 49
Contact
Accueil
Qui sommes-nous ?
Prestations
Compétences
Références
Accueil
Références
Centre de vacance Haute-Savoie
Maisons passives
Fluides
RT 2012
Audits énergétiques
Qualité environementale
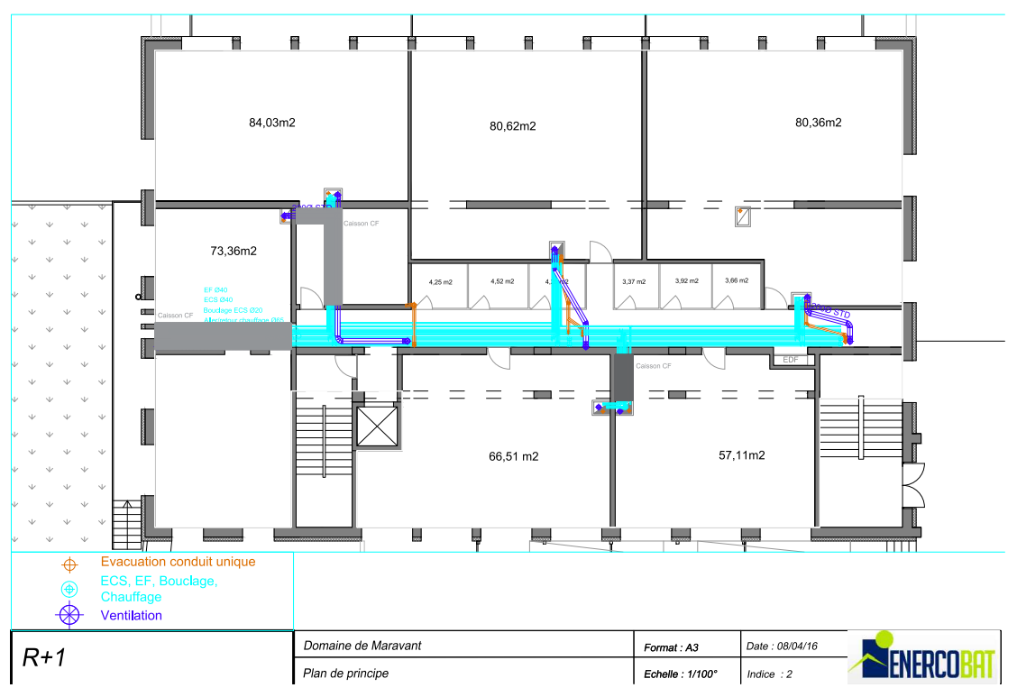
Centre de vacance Haute-Savoie
74500 Thollon-les-Mémises
2016
Caractéristiques
Surface
1 300 m²
Maître d’œuvre
SCTB (M. REY-GRANGE)
Missions
Maîtrise d’œuvre fluides
Projet
Rénovation d'un bâtiment pour en faire un centre de vacance
Montant travaux
1 150 000 €
Descriptif
Étude thermique
RT 2012
Études
fluides chauffage / ventilation / ECS
,
plomberie / sanitaires
,
électricité courants forts et courants faibles
et sécurité incendie
Chalet Savoie
Bâtiment collectif passif Haute-Savoie