04 50 34 79 48
06 33 33 44 49
Contact
Accueil
Qui sommes-nous ?
Prestations
Compétences
Références
Accueil
Références
Bâtiment collectif passif Haute-Savoie
Maisons passives
Fluides
RT 2012
Audits énergétiques
Qualité environementale
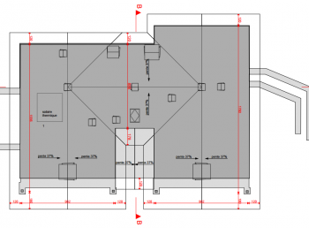
Bâtiment collectif passif Haute-Savoie
74920 Combloux
2014 / 2016
Caractéristiques
Surface
692 m²
Maître d’ouvrage
Sanyas immobilier
Missions
Conception " passive " et maîtrise d’œuvre fluides
Projet
Construction d’un bâtiment collectif " passif " de 5 logements
Montant travaux
1 700 000 €
Descriptif
Conception " passive "
avec logiciel PHPP
Études
fluides chauffage / ventilation / ECS
,
plomberie / sanitaires
,
électricité courants forts et courants faibles
Centre de vacance Haute-Savoie
Groupement Villas individuelle Haute-Savoie