04 50 34 79 48
06 33 33 44 49
Contact
Accueil
Qui sommes-nous ?
Prestations
Compétences
Références
Accueil
Références
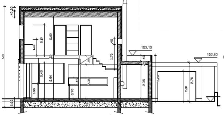
Maison passive Isère
Maisons passives
Fluides
RT 2012
Audits énergétiques
Qualité environementale
Maison passive Isère
38120 Saint-Égrève
2011 / 2012
Caractéristiques
Surface
175 m²
Maître d'ouvrage
Particulier
Mission
Conception et mis au point passive
Projet
Construction d'une maison passive
Montant travaux
180 000 €
Descriptif
Objectifs
Réalisé
5 KWh/(m².an)
13 KWh/(m².an)
n50 < 0,6 vol/h
0,25 vol/h
Conception " passive "
avec logiciel PHPP
Maison passive Jura
Certification HQE bureaux Haute-Garonne